A brick house with a front porch, wooden front door, and large windows. Shadow of tree branches is cast across the house and steps leading up to the porch.

1724 W Rascher Ave. Andersonville, IL 

The charming neighborhood of Andersonville in Chicago has a deep history rooted in Swedish immigration. According to Andersonville.com, the community grew into “Little Sweden” and now annually celebrates the Swedish culture with Midsommarfest. Clark Street, its main commercial artery, is lined with locally owned bakeries, vintage shops, restaurants, coffee shops, and more ,as stated by local Chicagoan Justin Kaufmann.

Andersonville is a diverse and vibrant area celebrated for its independent businesses, hisoric architecture, and home to one of Chicago’s largest LGBTQ+ populations.

1907 two-flat build

Located in Andersonville, Chicago

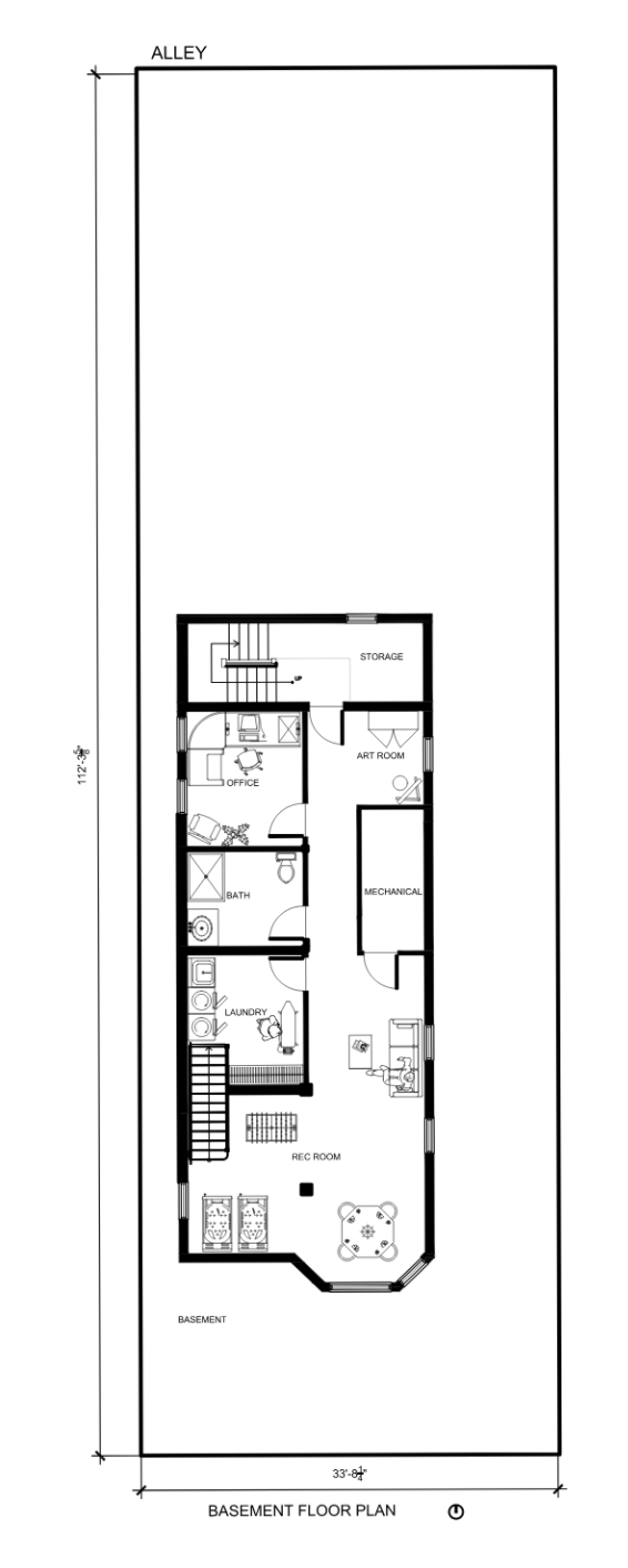
35’6” x 125’ plan

Building Code Requirements: 

2 exit routes, and access to light in bedrooms

Accessory Dwelling Unit 2025:

Chicago’s Accessory Dwelling Unit (ADU) ordinance significantly expands ADU legality citywide starting April 1, 2026 - According to cityofchicago.gov